The new headquarters of the Valencia Construction Sector Employment Foundation is located in an agricultural and semi-industrial landscape. The building has a simple and clear image, a series of different linked volumes that transmit, as a whole, the institutional representativeness that a building of these characteristics should suggest: a volumetric and constructive clarity capable of reaffirming the educational work and values that the Foundation carries out in it. Its location and design are defined on the basis of a formal and functional arrangement pattern of independent pieces or volumes grouped together by means of a pergola-plan that communicates and unites all the buildings under its modulated modulation and constructive order.
Given the complexity of uses and relationships of the different areas, the building is organized on a single floor, without architectural barriers, around two exterior courtyards of different characters. These courtyards become key parts of the internal functioning, either for outdoor practices (work courtyard) or as spaces for relationships, communication, and rest (leisure courtyard).
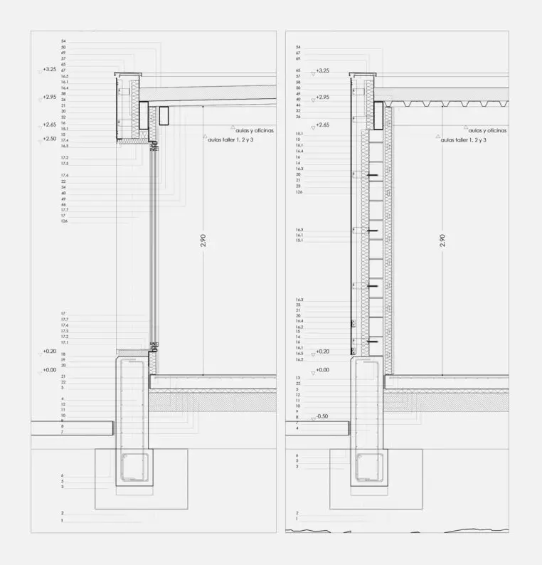
On the outside, the different volumetric characteristics give the complex its representativeness. Mainly the workshops, with a greater height, and occasionally the assembly hall and the offices with their volumes of skylights. The rest of the program of classrooms, offices and changing rooms is partially located below the roof plane. Thanks to this, the use of natural light in the different classrooms and workshops is resolved according to their teaching needs: the workshops are lit by skylights oriented mainly to the north-northeast and the rest of the rooms by means of openings in the façade with external sunlight control.
In the design of the building, the dialectic use of the structure, ordered and always visible, takes on special importance, resolved with the same constructive spirit as the rest of the materials and solutions used. A building whose finishes are a reflection of its construction process, using the construction details as a fundamentally visual resource.