TR House Barcelona is a single-family house with a compact morphology defined by the urban conditions of the site. The result is a 3 heights volume seated on a level below the street, establishing visual relationships with the small river and being visual integrated with the landscape of buildings around.
Its layout responds to the user needs, locating the main rooms of the house on an axis to give more privacy to the users from the street and neighbours and from their visual connection with the green environment. On the other axis the house pursues integration with the green environment.
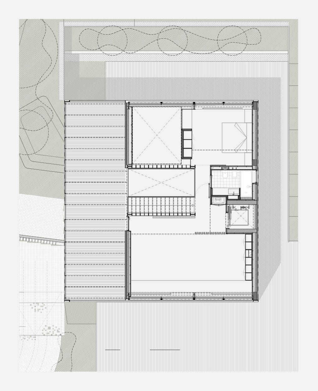
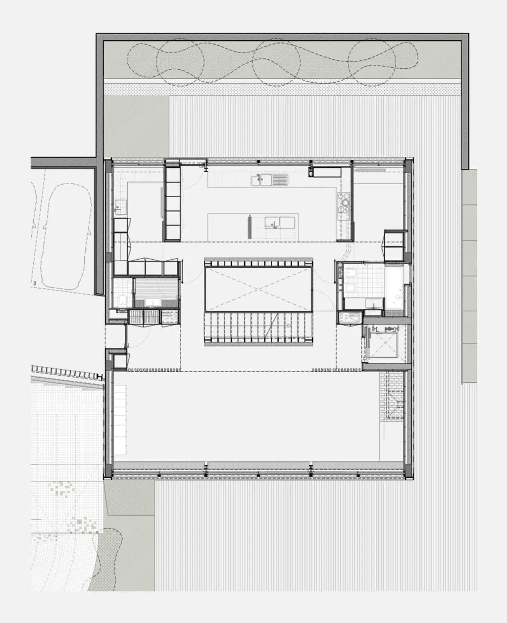
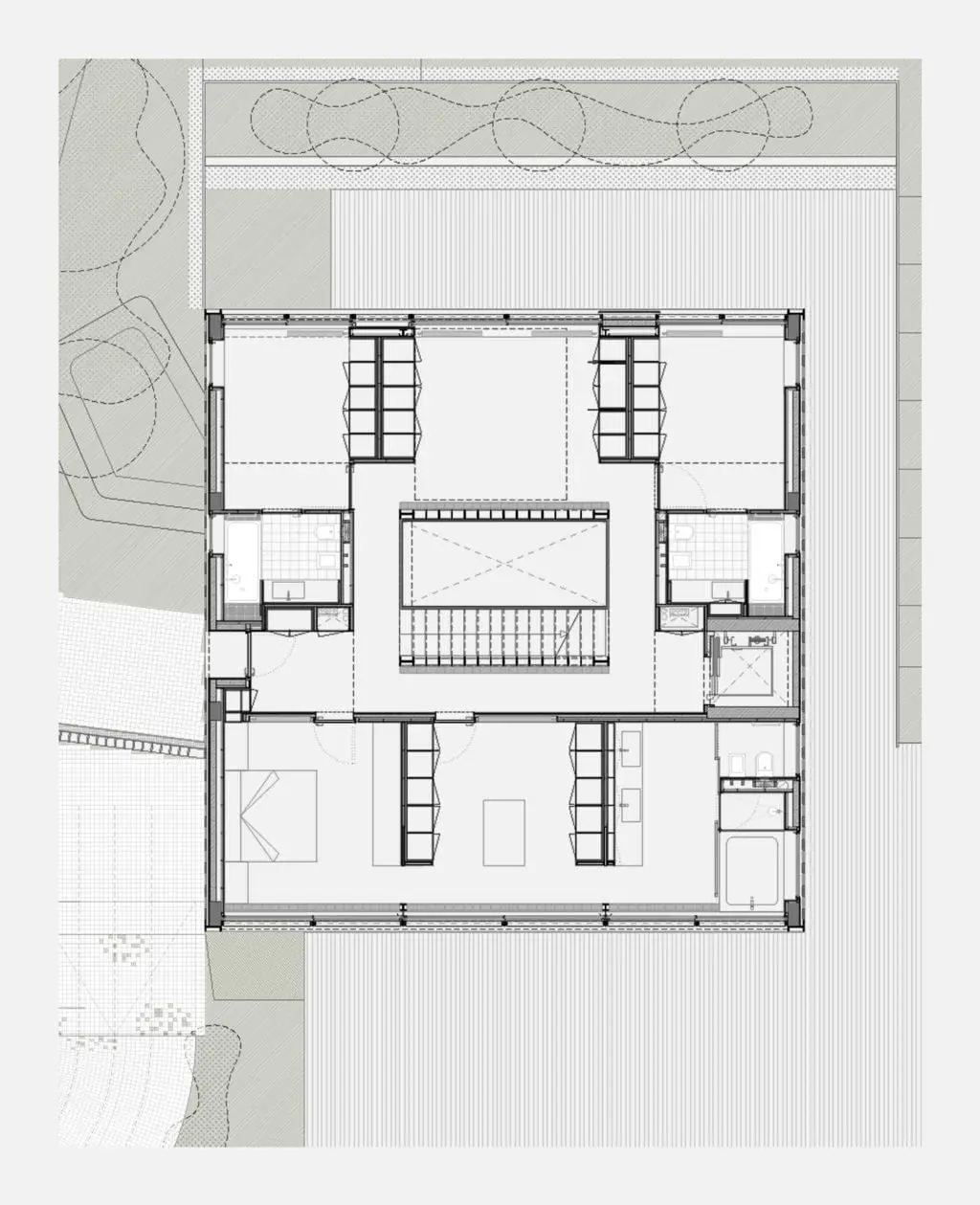
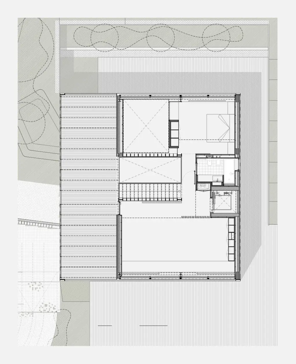
The house is laid out and structured around the patio that is located in the centre and is in charge of organizing all the rooms with a corridor along the patio perimeter. The different levels are connected with a stair that surrounds this space. The patio, also is giving light and exchanging visuals between rooms, crossing the views through the central space.
The image of the building, with his functionality, aims to respond to all the approached issues. On one hand, a continuous ceramic textile made from glazed tiles stacked in a hanging interwoven stainless-steel wire mesh, gives a single answer to the necessities created by the environment of the volume, integrating it into the green landscape. The textile has 4 different colours from the same green colour range, looking for similar variety of tones with the ones found in the landscape in different seasons, to enhance the integration with the garden. Façade, pergola, lattice and roof, 4 elements that traditionally in architecture have been worked separately, are solved at once.
On the other hand, the room facades are a direct response to their necessities, both visual and privacy from the direct use of the room and the relationship with the environment. The solution is a slatted wood façade made with tongue and groove slates of chestnut with a copper treatment. The slates rhythm and openings are a specific response for each room. In front of the openings, a system of adjustable hidden aluminium louvers has been placed to let the users to control the solar radiation at the same time to ensure interior comfort.
The height difference outside is resolved by connecting both accesses to two different floors with a running bond cobblestone ramp with grass filling the gaps.
At the front, a wood platform comes from the interior and extends the living-dining space to the exterior to create a nice outdoor living area under the shade of the trees. This platform also communicates with the back area of the house.