Prompted by surging urban growth in many of the nation’s larger cities, the goal was to create an engaging, accessible public space in the new district, and thereby foster the dialogue between citizens and decision-makers.
To emphasize the role of the center as a public venue, it has been developed as a continuation of the surrounding waterfront landscape and is therefore an integral part of the public park. Connecting pathways, bridges and streets have been woven into a topography leading to the many entrances of the building. The boundary between park and building has been blurred.
The enormous volume has been split into four main blocks connected by a central atrium. This leads to a faceted outer perimeter breaking the overall scale of the building and creating comfortable humane spaces around the volume. The building invites to stroll around and to explore various spaces, views and activities.
There are four main entrances on the second floor leading directly to the central atrium. The exhibition path starts on the top floor and follows a ramp system around the atrium. It is a fluid sequence of spaces without clear boundaries. It is therefore like a natural continuation of the outdoor landscape concept. Visitor shall explore the exhibition much like an urban neighborhood. They choose their own individual path through indoor and outdoor exhibition spaces, as well as lounges and terraces with scenic views of the city deliberately connecting the exhibition content with the newly developed urban surroundings.
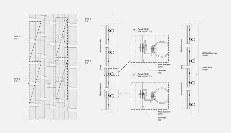
It was never the intention to demonstrate the capabilities of digital tools by means of this project. Nevertheless, this building couldn’t have been designed, developed, produced and built without the help of cutting-edge digital technology. In order to cope with the complexity of the spatial allocation and coordination of the structure, curtainwall, secondary structure and ceramic skin a tailor-made computer script had to be coded. The script automatically generated a 3D model of the structure and façade, as well as production drawings for the respective contractors.
The entire planning has been coordinated between the different trades in a central BIM model. This allowed us to control and direct the integration of sustainable building technologies including controlled ventilation, collection and reuse of rainwater, photovol- taics, etc.