A new concept has arrived in Wynwood this November 2020. Encased in a work of art by SUPERFLEX, ARCA’s Design Center by Esrawe Studio presents a gallery-like experience. Crossing through the colorful exterior art piece, one enters a collection of natural and technological materials triggering a cultural experience.
Commissioned to intervene the tile façade designed by Esrawe Studio is Danish artist group, SUPERFLEX, three artists known for blending art, science and activism. Titled Like a Force of Nature, the installation explores the fusion of color in relation to the neighborhood and its strong link to urban art.
“Unlike its colorful façade, the interior is designed as a neutral space to shift the focus onto the material collections”, says Hector Esrawe. ARCA Wynwood is presented as a museum-grade experience where the materials are showcased as unique works of nature, creating an opportunity for visitors to have an interactive, sensory experience with ARCA’s products.
The concept moves away from traditional retail space and promotes learning, stimulates dialogue and knowledge, and offers an understanding of why and how architecture, design, art, and culture are generated worldwide. This is accomplished with the dual-purpose design of showcasing the materials for experience and ease of purchase.
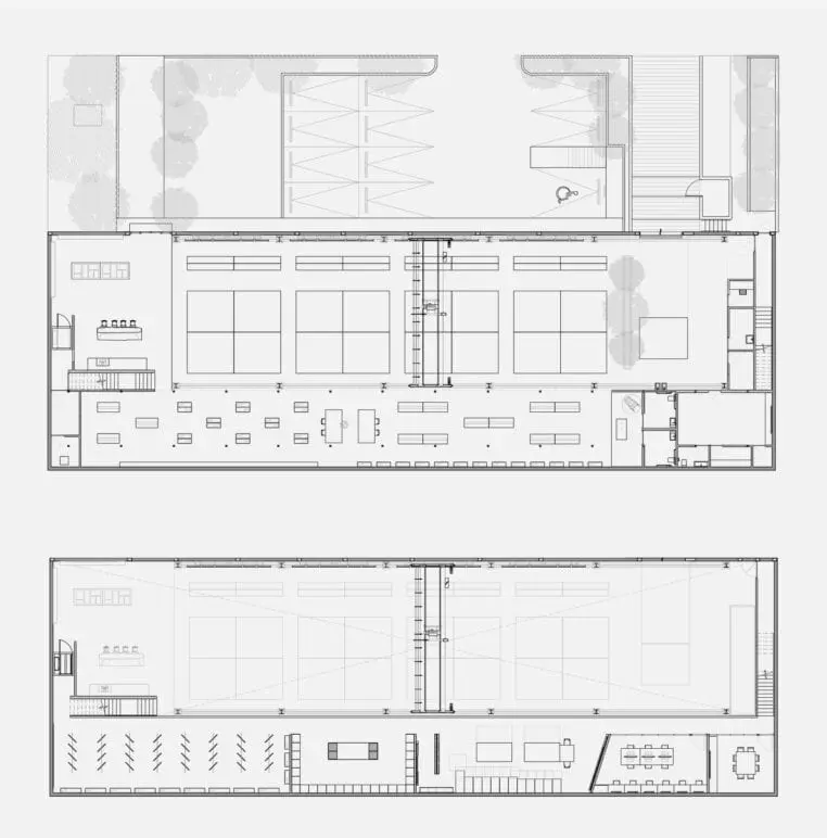
On the ground floor, guests are greeted by a visual experience. Videos of the quarries of ARCA -sources for its stone, its processes and other sources of inspiration or creation of materials- are projected at reception. In the double-height stone gallery, a curated display of massive slabs of marble sourced from around the world are presented. Each slab on display is available for purchase, where an indoor crane will reach down and help the customer select the exact piece. The second floor offers a journey through the evolution of materials, from natural wood to manufactured wood, ceramics, tile and porcelain, with a room dedicated to each one of them. The space invites designers and architects to meet with clients, experience the materials and get inspired for their projects.