This work presents architecture as a tool and as a strategy that mediates in social conflicts, rebuilding both the area and the relationships between its users. A multicultural architecture. Melilla is a small Spanish city bordering Morocco located in North Africa. The closing of the Central Market in 2003, after 90 years of operation, left a completely abandoned area in the city.
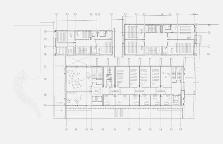
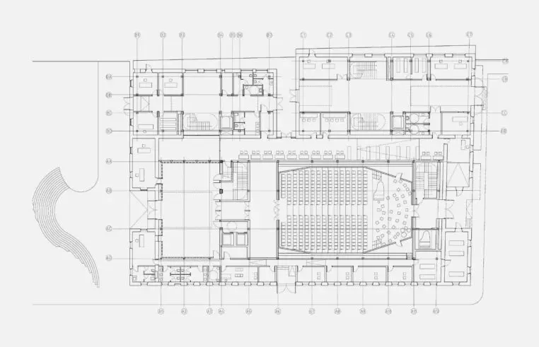
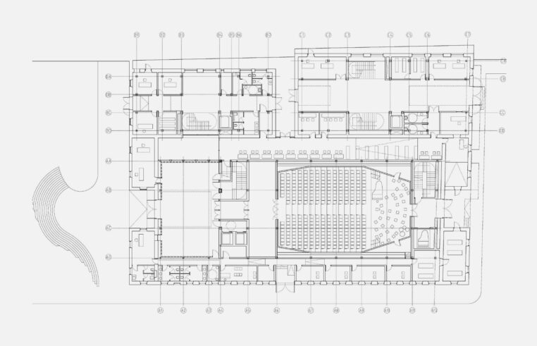
The ideas competition (2008) asked for three local educational centers to be relocated there: The Academy of Music, the Languages School, and the Educational Center for Adults. We take advantage of the situation of the Market in the border between three communities (Christians and Muslims mostly, and Jews) to propose a ”social catalyst” in order to join them again, starting a new dialogue after the radicalization and tensions that appeared over the last few years. The new section links two different districts at different heights, transforming the building into an urban connector. For this purpose, reprogramming the city: the new programs grow vertically until the programs are complete. With hardly any foundations, we decided not to excavate, we inserted a new structure and rose up. On the solid pre-existence grows light and scalar intervention.
Finally, the local ceramic materials are reinterpreted and the construction systems are adapted to the local climate, achieving a minimum expenditure and maintenance of the building.