Diseñado por SHoP Architects, el 111 West 57th Street es un rascacielos residencial que lleva al límite lo que es posible dentro de las normativas urbanísticas de Midtown Manhattan. Con una relación ancho-alto extraordinaria de 1:24, se considera el rascacielos más estrecho del mundo, alcanzando aproximadamente 427 metros de altura mientras mide solo unos 13,7 metros de ancho en su punto más ajustado. Esta extrema esbeltez le otorga a la torre una impactante presencia en el horizonte de Nueva York y la convierte en el segundo edificio más alto del hemisferio occidental. Se puede definir al 111 W 57 St como rascacielos “supertall”, son aquellas estructuras que miden entre 300 y 600 metros de altura.
La expresión arquitectónica está definida por el uso de revestimiento cerámico que asciende a lo largo de las fachadas este y oeste, unificando visualmente la volumetría de la torre en la tradición de los rascacielos clásicos de Nueva York, como One Wall Street, 30 Rockefeller Center y el Empire State Building. Una corona decorativa de 91 metros de altura completa la composición y refuerza sus referencias clásicas.
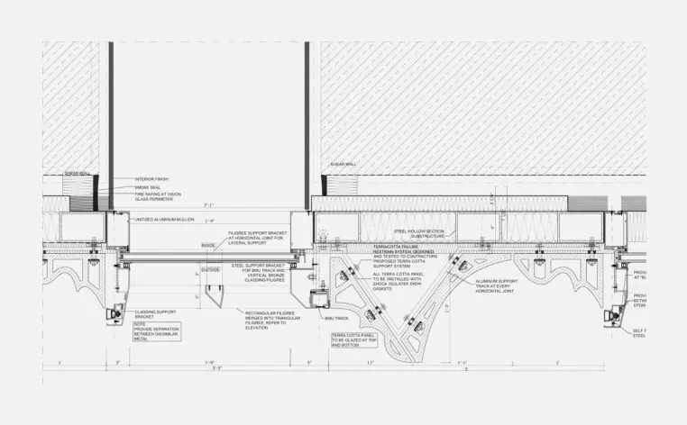
La torre fue anunciada en 2013 y comenzó su construcción en 2014, aunque esta se detuvo en 2017 por razones financieras antes de alcanzar su altura total en 2018. Según SHoP Architects, la estructura fue construida utilizando el concreto de mayor resistencia. Uno de los mayores desafíos del proyecto fue desarrollar un sistema de fachada capaz de soportar el peso del revestimiento cerámico. Muros de corte de hormigón respaldan las fachadas este y oeste, permitiendo solo ciertas aberturas de ventanas perforadas. Estas aberturas incorporan vidrio de visión, mientras que los paneles restantes contienen cajas de sombra dentro de un sistema de muro cortina. El edificio cuenta con aproximadamente 53.140 m² de superficie y alberga una vivienda completa por piso, junto con otras 14 adicionales en el edificio histórico adyacente, para un total de 60 viviendas que ofrecen vistas panorámicas de Central Park.