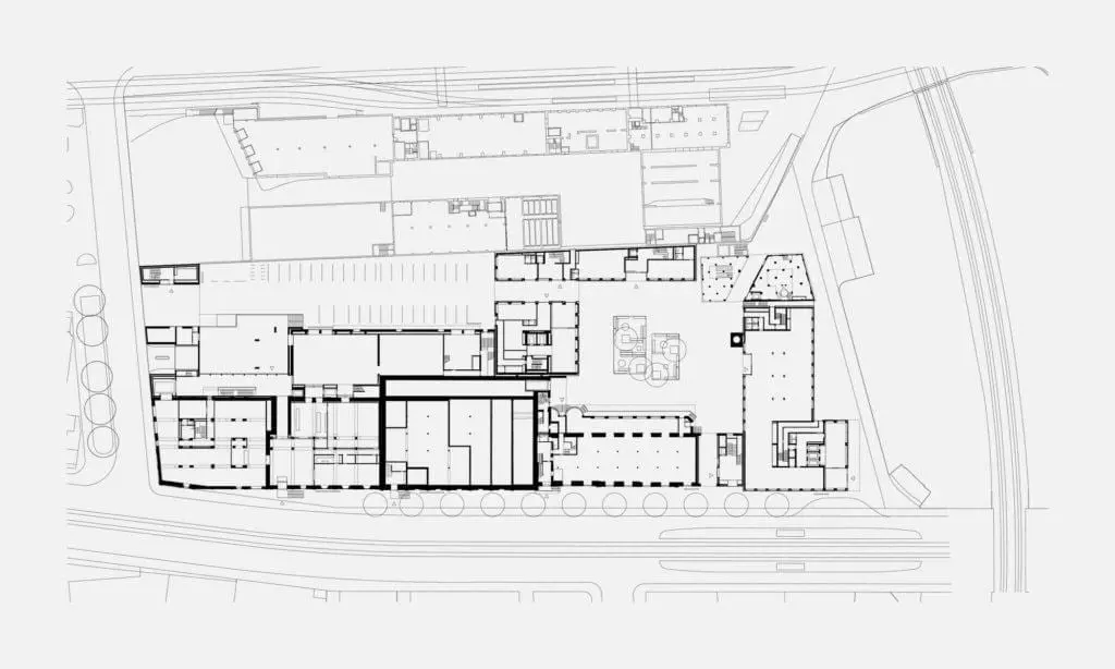
Al agregar nuevos edificios al complejo existente, el conjunto urbano evoluciona creando otro punto de atención. Las estructuras existentes y la antigua fábrica principal de cerveza en Limmatstrasse quedan enmarcadas por la adición de un nivel más en la parte superior del Arts Centre en el oeste y por el taller New East Office Building en el extremo opuesto, cerca del viaducto ferroviario.
El nuevo complejo de Löwenbräu ahora se puede ver no solo desde la calle y desde la distancia, sino también desde sus dos patios. El antiguo Brewer’s Yard, un sitio histórico, ofrece acceso a los edificios de los alrededores formando un espacio exterior sin tráfico para relajarse. La nueva entrada a las instituciones de arte se encuentra en el Art Courtyard, que también incluye espacios de estacionamiento para los visitantes.
Junto con el área de entrada a la sección de arte y a la de historia, el edificio New West se proyecta en ángulo recto y colinda con los antiguos talleres en el lado del patio. Incluye salas de exposición de arte, alojamiento de huéspedes y oficinas. Los espacios de exposición y una sala multifuncional se pueden dividir según sea necesario. Están iluminados por ventanas laterales y se accede directamente desde el área de entrada a la sección de arte. Esta zona ha sido concebida como un nuevo vestíbulo con una esclaera y ascensores de generosas proporciones. La escalera es directamente accesible desde el vestíbulo, que se puede entrar desde Limmatstrasse o el patio.
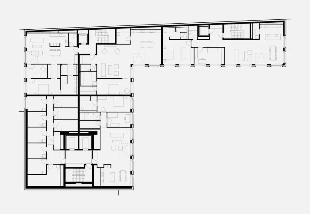
El Edificio Residencial Central High-Rise, con su gran proyección hacia el sur, alberga 37 apartamentos, habiendo, dependiendo de la planta entre uno y cuatro apartamentos, que se enfrentan en varias direcciones, ofreciendo vistas de la ciudad, el lago y al valle de Limmat. El volumen principal de la torre se despliega en voladizo sobre una base más estrecha ubicada en el Brewer’s Yard. Los 21 apartamentos de la base dan hacia el sur en el patio. Las instalaciones de servicio están ubicadas en la planta baja, además de un pasillo entre los dos patios y los vestíbulos.
El New East Office Building también es una estructura en ángulo con una sección más alta en Limmatstrasse y un segmento inferior entre Dammweg y Brewer’s Yard. En la planta baja, el vestíbulo de entrada a las oficinas se encuentra bajo la proyección, mientras que a la galería y a los espacios comerciales se accede a través del patio. Los diferentes anchos de las habitaciones en las plantas de oficinas superiores les permiten adaptarse a una serie de oficinas variables en tamaño.