El proyecto consistió en la renovación y ampliación del Museo Holburne, un edificio catalogado de grado I situado en Bath, dentro de una zona protegida y declarado Patrimonio de la Humanidad por la UNESCO. En 1913, el arquitecto, paisajista y escritor Sir Reginald Theodore Blomfield transformó el Museo Holburne en un hogar para la importante colección de pinturas, plata, esculturas, muebles y porcelana propiedad de Sir William Holburne.
El museo está situado al final de Great Pulteney Street, una de las calles más impresionantes del siglo XVIII en Europa, une el museo con centro de Bath y los jardines donde se implanta.
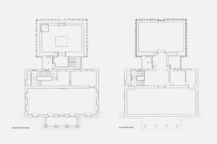
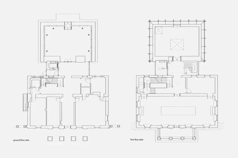
La ampliación de tres plantas proporciona 800 metros cuadrados adicionales de espacio en las galerías para albergar la colección, que ha crecido en unas 2.000 piezas desde la apertura del museo en 1916. La ampliación transforma la experiencia de los visitantes con instalaciones mejoradas, un ascensor que (por primera vez) permite que el Museo sea totalmente accesible para todos, y una cafetería que se abre a los jardines.
El resultado es una composición de cerámica y vidrio altamente vidriada que ofrece vistas panorámicas de los jardines adyacentes y permite que un torrente de luz natural ilumine la valiosa colección que alberga. Un elemento clave de la construcción fue reconectar el volumen existente con la floreciente flora que lo rodea a nivel del suelo, lo que inspiró a Eric Parry Architects a formar una fachada transparente. De esa modo, en la primera planta, la fachada de cerámica maciza retrocede tras el cristal y luego se aleja completamente por debajo, creando un sutil juego de sombras y reflejos.
El proyecto reúne los históricos jardines de Sidney con la ciudad recreando el claro eje entre Great Pulteney Street en un extremo y los jardines en el otro. El proyecto mejora significativamente el papel del museo en la comunidad y actúa como catalizador para la regeneración de esta zona de Bath y Somerset.