Kannikegården es una nueva casa para el consejo de la iglesia parroquial de Ribe, construido en una plaza justo al otro lado de la catedral. El edificio alberga funciones para el consejo de la iglesia parroquial y el personal de la iglesia. Al mismo tiempo, tiene que funcionar como un marco hospitalario para eventos públicos, tales como: charlas, conciertos y proyecciones de películas.
El proyecto se ha enfrentado a un desafío especial: en el terreno se han encontrado monumentos antiguos que nos cuentan la historia danesa de los últimos mil años. Lo más visible es una ruina de ladrillo catalogada del monasterio de Augus-tine que data del 1100. La ruina se integra en un espacio de exposición diseñado para comunicar las muchas capas históricas culturales de la ubicación. El edificio consta de un solo volumen con techo inclinado, apoyado sobre pilares sobre los hallazgos arqueológicos preservados.
El ala del edificio se ubica a lo largo de la plaza con una escala y un ángulo de cubierta que sigue los edificios vecinos de la plaza. Hacia el sur se construye un atrio íntimo, marcado por una pared que enmarca las zonas que dan hacia la calle Sønderportsgade y Rykind.
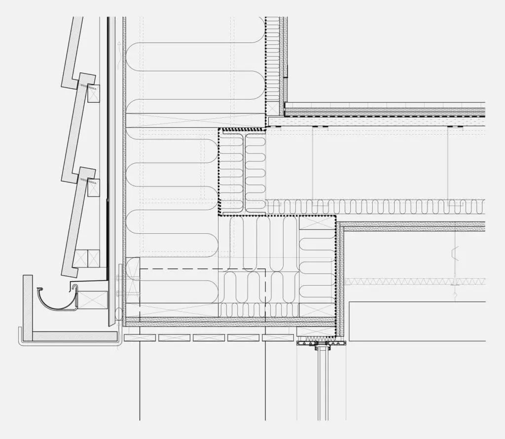
La parte superior del edificio está cubierta con azulejos de fachada especialmente desarrollados en tonos marrones rojizos similares a los de las típicas casas de ladrillo de la ciudad y la región, pero con una interpretación más contemporánea debido al mayor tamaño de las piezas. Estas piezas cerámicas se colocan de forma superpuesta, como las escamas de pescado, y enmarcan las ventanas de los espacios interiores.
La parte inferior aparece con fachadas de cristal, al mismo tiempo protegiendo la ruina y exponiendo los hallazgos históricos encontrados.