El edificio para albergar las Colecciones Naturales de la Universidad de Alicante, UA, forma parte del conjunto de pabellones militares que, a finales de la década de 1930 y principios del de 1940, prestaron servicio y apoyo al aeródromo de Rabasa, inaugurado en 1919.Estos edificios preexistentes confieren al Campus Universitario un carácter muy singular, ya que una institución que cumplirá 40 años en 2019 tiene, sin embargo, vestigios centenarios en su composición urbanística.
Teniendo en cuenta estas referencias, la política espacial del equipo de gobierno de la UA ha incluido entre sus objetivos actuar sobre estos edificios singulares y patrimoniales para actualizarlos en cuanto a su normativa y armonizar sus peculiaridades tipológicas (este pabellón podría leerse como una réplica remota y en miniatura del Prado, originalmente el Museo Nacional de Ciencias Naturales) con su uso, albergando los representativos y transversales para toda la comunidad universitaria. En este caso, el Museo de las Colecciones Naturales de la UA, inspirado tanto por la belleza de sus colecciones como por la fascinación que despierta el trabajo científico con ellas (su investigación, custodia y conservación). A principios de los años 80, se añadió un edificio racionalista al volumen del pabellón original y se llenó la parcela con él.
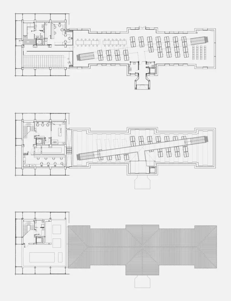
COR Asociados Arquitectos, graduados de la UA, han propuesto un proyecto cuyas estrategias adaptan, con inteligencia y sensibilidad, el programa funcional resuelto y los elementos preexistentes. En el pabellón, la operación ha consistido básicamente en eliminar todas las particiones y adherencias que se habían realizado a lo largo del tiempo para recuperar la rotundidad del espacio original, un edificio con cubierta a dos aguas. Este, de color blanco brillante en el exterior y cálido en su revestimiento de madera de eucalipto en el interior, como un Gabinete de las Maravillas, se convierte en el continente perfecto para la exposición de las Colecciones Naturales y el trabajo de los investigadores con ellas. Una gran «ventana indiscreta» en el extremo libre participa del contenido a la comunidad universitaria.
La construcción adosada incluye las salas necesarias para el tratamiento y mantenimiento de las colecciones (laboratorios, herbario, etc.), optimizando su uso racional con fines científicos. Por otra parte, este volumen era un edificio fuera de lugar, sin continuidad con el del antiguo pabellón, por lo que se decidió suavizarlo y matizarlo por fuera mediante una celosía cerámica que, con gracia y delicadeza, vigila lo que ocurre en el interior, vuela sobre el techo y que una pequeña caja de cerámica verde brillante replica a la entrada del pabellón.