La Terminal de Cruceros de Oporto es un pequeño complejo portuario, iniciativa de la Administração dos Portos do Douro e Leixões, situado en un embarcadero al Sur de Matosinhos, Portugal.
La definición de una nueva terminal de cruceros tiene desde entonces un doble objetivo: una mejora de la eficiencia comercial y una mejor integración urbana. Se busca al mismo tiempo, dotar al puerto de Leixões de las condiciones para recibir grandes cruceros, de hasta 300 metros, y la integración de funciones y espacios con vocación urbana, es decir, la generación espacios donde la comunidad urbana circundante pueda socializar, ahora que el vínculo entre la población y la actividad pesquera se ha disipado de la misma manera que la antes existente entre el puerto y las fábricas de conservas.
La propuesta depende mucho del edificio principal, que constituye un nodo entre las 3 funciones principales: el nuevo muelle de cruceros, el nuevo puerto deportivo, y la nueva calle que une con la ciudad. Recibe y envía a los que vienen y a los que se van con estas tres motivaciones, ya que incluye las salas de llegadas y salidas en el lado del mar y las instalaciones del puerto deportivo del Parque de Ciencia y Tecnología del Mar de la Universidad de Oporto, espacios para eventos, un pequeño restaurante y un aparcamiento en el lado de la tierra .
Encantada por la curva del muelle y por este compromiso y vocación de intermediaria, la terminal se enlaza con unos muros curvos, prolongándose y formando 3 tentáculos exteriores y un cuarto que va hacia el interior formando una rampa helicoidal que conecta las funciones interiores con un espacio a cuatro alturas. Los brazos exteriores extendidos conducen a los investigadores al nivel del mar y a los pasajeros desde el nivel de salida hasta la pasarela de crucero o a la pasarela elevada hacia la playa y la ciudad de Matosinhos.
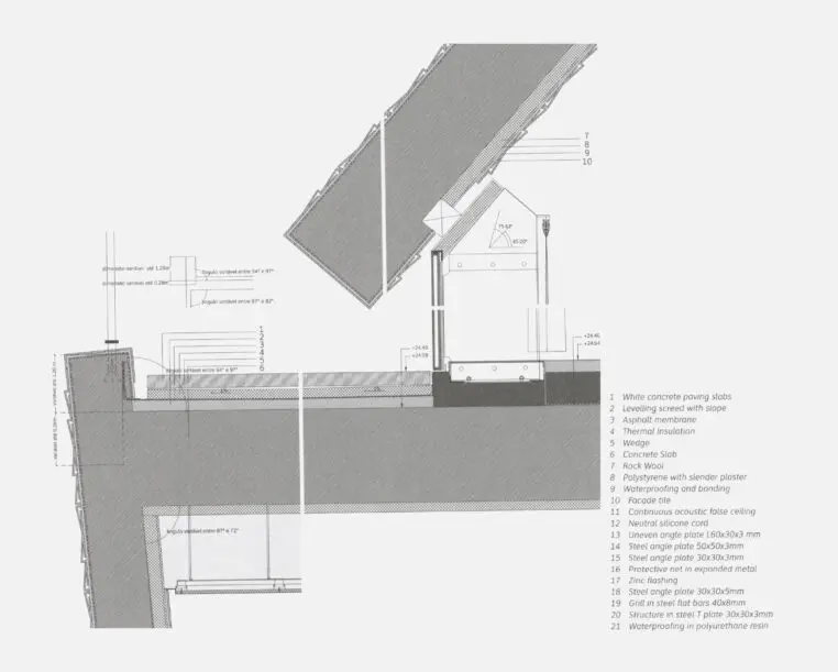
El edificio no es muy grande, sobre todo si se compara con los barcos de crucero que puede llegar albergar. Desde la playa, uno puede darse cuenta de que se encuentra claramente en el interior del puerto de Leixões, de tal manera que se enfrenta al embarcadero, no muestra ninguna abertura por lo que su misteriosa fachada es ciega. La cubierta inclinada, concede al perfil del edificio mucha personalidad. La gran cubierta en la zona de los autobuses toca ligeramente el dique de granito sugiriendo una invitación distante hacia el exterior. Desde la lejanía, el edificio se lee por su volumetría y por su sinuoso color blanco, con todos sus matices causados por la luz y por la variación atmosférica. De cerca los arcos y su textura apelan a la proximidad, invitando a mirar y tocar. En la cubierta accesible, la tierra y el mar se encuentran y expanden suavemente la amplitud que el ojo puede alcanzar.