En un emplazamiento extremadamente delicado, la nueva iglesia de Poing, con su forma escultórica, funciona como una piedra angular entre el paisaje y la ciudad. De esta manera, el diseño retoma las diferentes relaciones entre el campo y la urbe y las fusiona en la plaza de la propia iglesia, que se muestra como un atractivo refugio para el público.
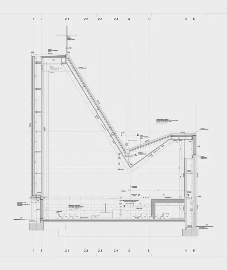
El campanario y la rectoría están situados en la parte baja y forman el borde de la plaza de la iglesia, componiendo así el marco del templo. La base de la iglesia, que parece surgir del suelo, está constituida por un cimiento masivo de un conglomerado de molasas, un típico conglomerado de grava de la Alta Baviera. En la parte superior, en cambio, como un hito imponente y fácilmente identificable de la nueva iglesia parroquial, se eleva la cubierta de cerámica blanca, que se despliega con energía escultórica. El contraste entre la etérea corona blanca y los cimientos de piedra representa la oposición entre el cielo y la tierra, entre la trascendencia y la inmanencia, y es en este campo de tensión donde el espacio eclesial está anclado.
El edificio se abre a la rectoría y a la plaza de la iglesia. De esta manera, entrando en el espacio de la capilla con su ligera inclinación hacia el altar, después de una zona de entrada inferior, se abre una sala de luz, de estilo barroco, que invita a la vista hacia el cielo. Esta sala, tanto constructiva como simbólicamente, se compone de una cruz espacial que se manifiesta como una poderosa imagen en la forma del pliegue del techo. Como analogía a la Santísima Trinidad, tres grandes tragaluces, respectivamente, iluminan varios lugares y actividades litúrgicas.
La ejecución especialmente cuidada de los azulejos cerámicos está coordinada con el concepto de luz y espacio de la iglesia y crea, con su singular geometría, una refracción de la luz múltiple. Jugando con la luz de esta manera, el paisaje del tejado se convierte en la «corona de cristal» de la ciudad de Poing.