La arquitectura apuesta por un lienzo cerámico, material de gran arraigo en la tradición local, a modo de piel evocadora previa a zonas vidriadas. Presente en el interior y en el exterior del volumen dominante, colabora en el control de la radiación solar y provoca, tamizando la luz, infinidad de transparencias, vibraciones y reflejos diferentes.
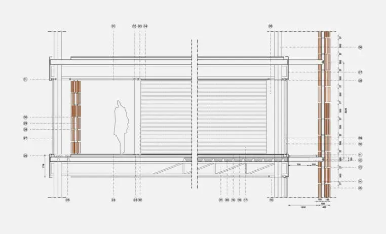
Pese a la apariencia casual y espontánea del gramaje de la celosía cerámica, ésta se rige por una praxis constructiva totalmente sistematizada; de los chapones de borde que encintan los cantos de las placas estructurales emergen unas ménsulas cortas compuestas por una doble pletina que abraza en punta los esbeltos montantes a tracción a los que se atornillan los renglones o maestras de la cerámica… Estos últimos se conforman con dos pequeños perfiles en “U” taladrados alternativamente en sus caras superior e inferior, para permitir la penetración de pequeños “pasadores” ( bulones de acero) que estabilizan la pieza cerámica impidiendo su movimiento y giro. Toda esta estructura auxiliar de acero galvanizado se somete al módulo del vivero. En las fachadas sur y este la celosía se dispone al exterior separada del vidrio mediante una galería de mantenimiento y caracteriza el volumen como un diedro cerámico representativo del edificio. En las fachadas norte y oeste la celosía se dispone al interior, tras el vidrio, filtrando la luz y aproximándose con su materialidad a la percepción visual y táctil del usuario.
El uso preferente y casi único del lienzo cerámico en la definición de la imagen exterior logra cualificar la arquitectura, creando una figura sugerente que, alejada de camuflajes estériles, es capaz de identificar y singularizar a la Cámara de Comercio e Industria de Toledo.