El Palacio de Congresos de Aragón surge de una plataforma artificial, un terreno horizontal sobreelevado cinco metros respecto a su cota natural, en la que se asienta el recinto de Expo 2008. Un plano se pliega desde el suelo dibujando un perfil quebrado y variable –ascendente y descendente- que manifiesta expresivamente la sección que lo genera. Como un manto blanco y resplandeciente, una gran cubierta de GRC y cerámica envuelve los lucernarios que introducen la luz natural en los amplios espacios interiores fluidos y continuos.
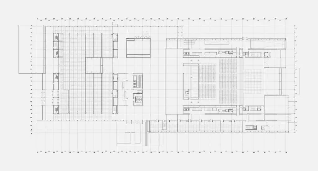
Los tres cuerpos principales que albergan los elementos esenciales del programa: auditorio, sala de exposiciones y salas modulares quedan conectados entre sí a través de un gran vestíbulo común capaz de relacionar los distintos espacios. El auditorio principal de 1500 espectadores puede dividirse por medio de paneles móviles en una sala de 1000 y otra de 500 en la planta superior, permitiendo su uso alternativo. El cuerpo destinado a exposiciones -con posibilidad de acceso independiente- puede ser utilizado para muestras, seminarios u otros actos simultáneos. Una amplia planta subterránea alberga las áreas de carga y descarga, instalaciones, camerinos, almacenes y cocinas que hacen posible el correcto funcionamiento de un centro de estas características sin interferir con los espacios públicos del edificio.
Geometría, estructura y construcción forman parte en esta propuesta de un mismo concepto combinatorio. La obligada necesidad de una rápida ejecución de la obra supuso la razón de su propia concepción arquitectónica. Una estricta modulación geométrica, la preferencia por el uso de sistemas constructivos prefabricados susceptibles de ser repetidos, la elección de una solución estructural basada en jácenas metálicas de grandes luces y finalmente, la voluntaria contención en la paleta de materiales, son todos ellos argumentos de una estrategia que permitiera afrontar los condicionantes estructurales y constructivos de una rápida ejecución.
Los espacios interiores responden a una misma gradación de texturas y color. Revestimientos metálicos y de hormigón visto en vestíbulos y áreas comunes coexisten con solados continuos y divisiones de vidrio. El auditorio principal también participa de la voluntad de luminosidad y claridad en sus materiales predominantemente metálicos. Al exterior, grandes frentes acristalados quedan velados por un sistema de celosías de metal estirado que producen diferentes grados de transparencia, favoreciendo así la percepción de ligereza del conjunto.
Si bien es la sección de los grandes lucernarios la generadora del espacio interior, corresponde al material y sistema constructivo de las cubiertas su percepción exterior. Un conjunto combinatorio de paneles prefabricados de GRC incorpora piezas cerámicas blancas mateadas o brillantes, fabricadas por Ceràmica Cumella, produciendo una vibración y alternancia de luz reflejada que caracteriza el perfil del edificio.
El brillo y la claridad que preside la imagen del edificio durante el día encuentra su contrapunto en la noche, cuando el Palacio de Congresos aparece como un paisaje de luz sólida emergiendo del terreno: metáfora de la condición inmaterial que -tal vez inconscientemente- imaginamos desde un principio para este edificio.